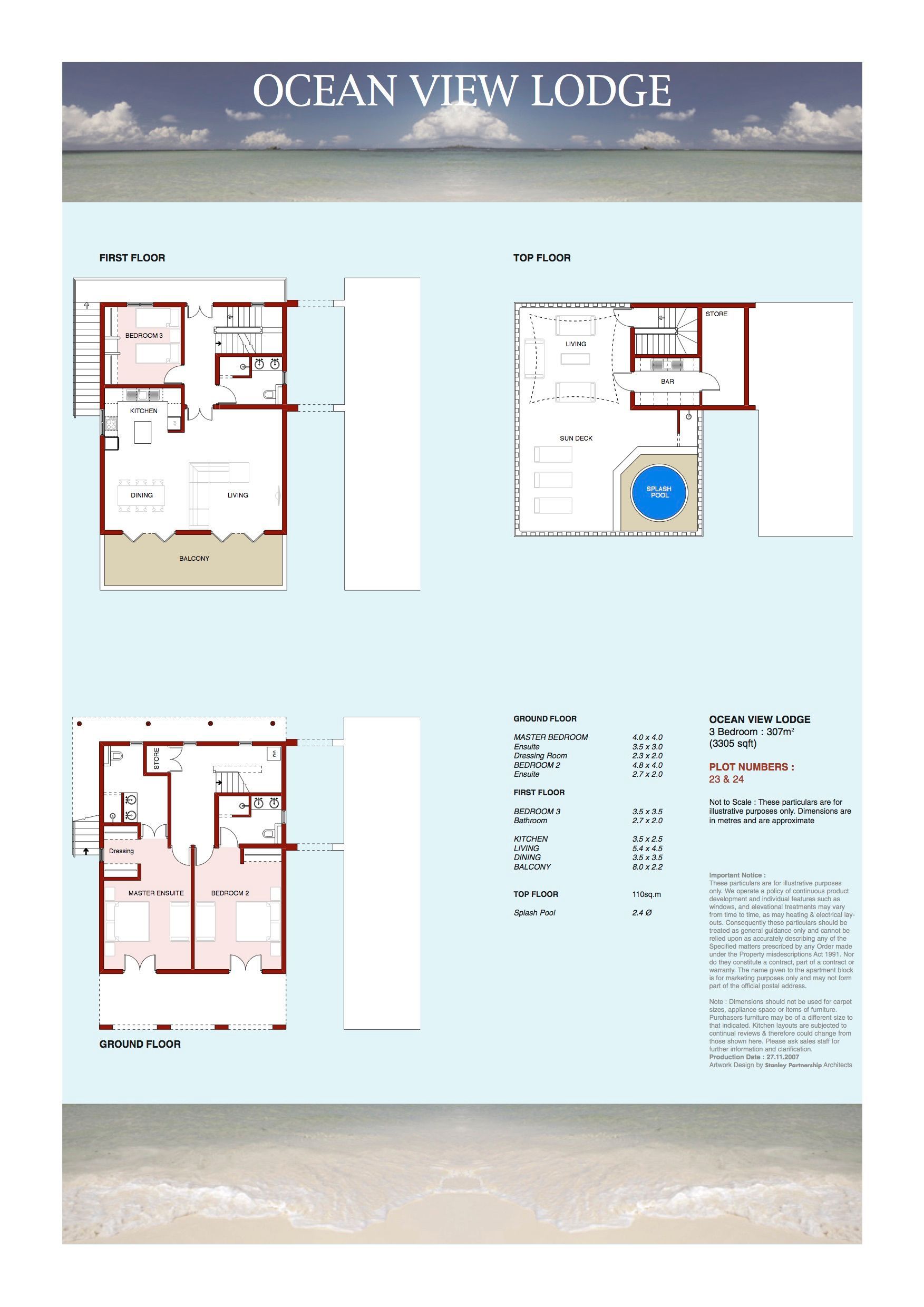
Medina Palms

Kenya


Stanley Partnership was offered an unusual commission to redesign the marketing artwork and produce new brochures for a complex of luxury villas on the coast of Kenya.


The new layouts and redesigned corporate ID proved highly successful and helped to promote sales.