Brandon House
Cheltenham
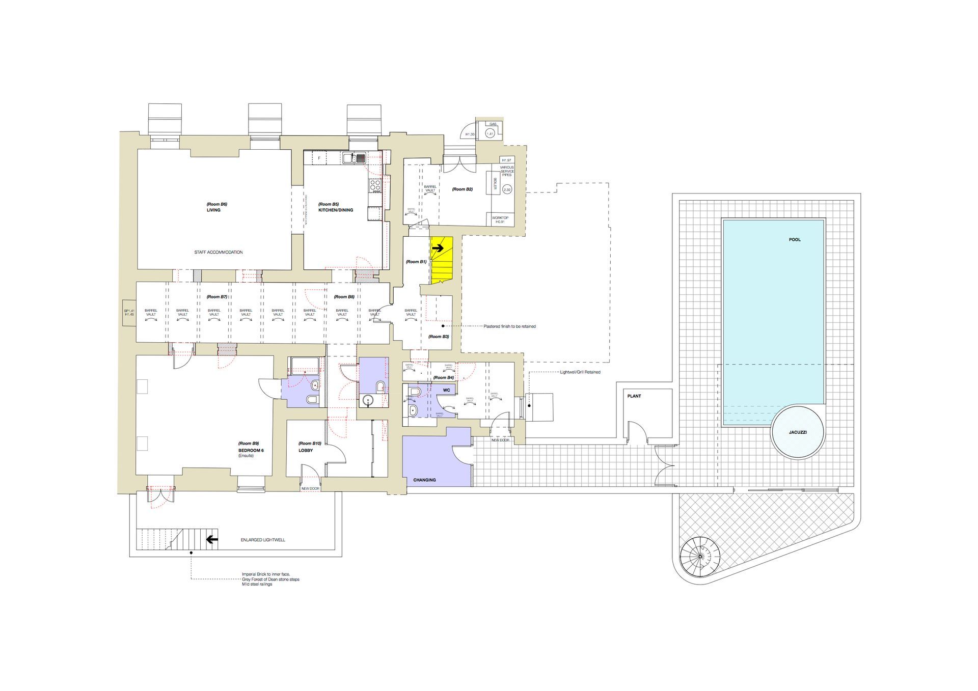
Brandon House is considered to be one of the most valuable historic dwellings in Cheltenham, built between 1834-1839 for Henry Norwood Tyre.
Detailed Planning (inc. change of use from offices) and Listed Building Consent was obtained for this distinctive and unique Grade II* Listed Villa.
The proposal consists of a comprehensive refurbishment with a single storey triple garage and subterranean swimming pool.




